Sue Milam Reed, Broker Associate
Refine Search

Tbd 2 County 3848 Road, Poolville, TX 76487

$815,000
  • Tbd 2 County 3848 Road, Poolville, TX 76487 Main Photo

2 Total Photos [Click to View All]

Active
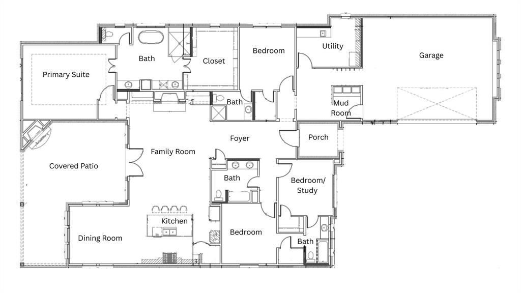
BEDS3 BATHS3 full SQUARE FEET2,785 MLS#21141783
STATUSActive PROPERTY TYPEResidential - Single Family SUBDIVISIONJM Morrison SCHOOLPoolville ISD

Property Description

Ten acres to spread out, build big, and live your way. This modern custom home offers the peace, privacy, and freedom of true country living—within easy reach of Fort Worth first, then Weatherford, and located in Poolville ISD.Thoughtfully designed for both comfort and flexibility, the home features 3 bedrooms, a private study, and a 3-car garage all set on 10 beautiful acres of rolling countryside with mature trees and open views. Enjoy quiet surroundings, room to expand, and the kind of space that’s becoming increasingly hard to find.Inside, an open-concept layout highlights a modern kitchen with a large quartz island, custom cabinetry, and sleek finishes, flowing seamlessly into spacious living and dining areas. High ceilings and abundant natural light create an inviting atmosphere ideal for both relaxed living and entertaining.The primary suite offers a private retreat with a spa-style bath, walk-in shower, soaking tub, and generous closet space. Three additional bedrooms plus a dedicated study provide flexibility for guests, multi-generational living, hobbies, or a home office.Step outside to a large covered patio overlooking your 10 acres, with room to add a pool, shop, barn, or additional structures, or simply enjoy the peace and privacy of wide-open land. Additional tracts are available, allowing buyers the opportunity to purchase more land and create a larger private estate.This home captures the best of modern country living—contemporary comfort, expansive land, and long-term flexibility—all within Poolville ISD.Coming May 2026

Tbd 2 County 3848 Road | MLS# 21141783

This single family home located at Tbd 2 County 3848 Road, Poolville, TX 76487 is currently listed for sale with an asking price of $815,000. This property was built in 2026 and has 3 bedrooms and 3 full baths with 2785 sq. ft. Tbd 2 County 3848 Road is located in the JM Morrison subdivision within the Poolville ISD school district. Search JM Morrison real estate on suemilamreed.kellyrealtors.com today.

Property Features

Property Type: Residential - Single Family
Fireplaces: 1
Garage: 3 car attached
Lot Size: 10.01 Acres
Year Built: 2026

Amenities

Built-in Features

Feature Descriptions

Appliances: Dishwasher
Days on Site: 64
Fireplace: Electric
Parcel#: Z000024060
Parking: Garage Faces Side
Parking Notes: Garage Faces Side
Utilities: Aerobic Septic

Local Schools

Elementary School: Poolville
School District: Poolville ISD

Listed By / Shown By

Listed By

Agency Name: Premier N Texas Real Estate
Agency Contact: 817-737-7777
Agent Name: Patti Lyerla

agent picture

Shown By

Agent Name: Sue Milam Reed, Broker Associate
Agent Phone: (254) 744-3364
Agency Title: Kelly, Realtors

IDX logo

Estimate Your Payment

Estimated Payment

$ 2,051.55 per month $1,813.84 Principal & Interest $0.00 Property Tax (data not provided by mls) $237.71 Homeowner's Insurance

Change Payment Information

%
years/fixed
yearly
yearly (est.)
(Payments are an estimate and may vary by lender)

Login to My Homefinder

Pixel